2024/4/19
绿景
6597
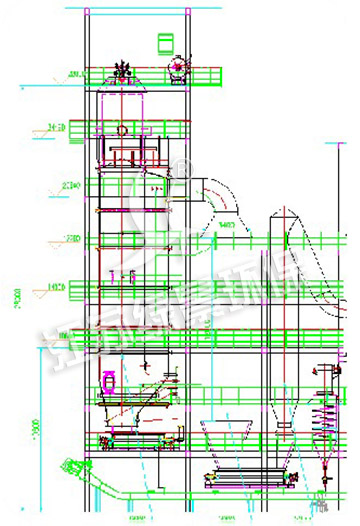
技术原理:
化工生产过程中产生高COD、高含盐量的废水(如丙烯酸行业、塑料助剂等);在焚烧炉内通过1150℃的高温氧化分解;使COD等有机物质转变为二氧化碳、水等物质;然后在通过余热回收、除尘系统、尾气处理系统进行处理后达标排放。

产品特点:
1.炉锅一体化炉型,解决传统炉型熔盐堵塞设备及管道的问题;
2.解决高热值高浓盐水焚烧超温耐材腐蚀的问题;
3.合理结构和耐火材料设计,出盐稳定;
4.系统无二次污染物产生,保证长期稳定运行;
5.低温段防腐蚀,高效烟气处理系统保证烟气达标排放。

